Buildner Competition – MicroHome
- Competition, Architecture, Architecture d'intérieur, Mobilier

The structure, suitable for a couple, is deliberately open to its environment, thanks to the use of recycled / recyclable translucent polycarbonate over a major part of its surface in order to erase the boundaries between inside and outside.








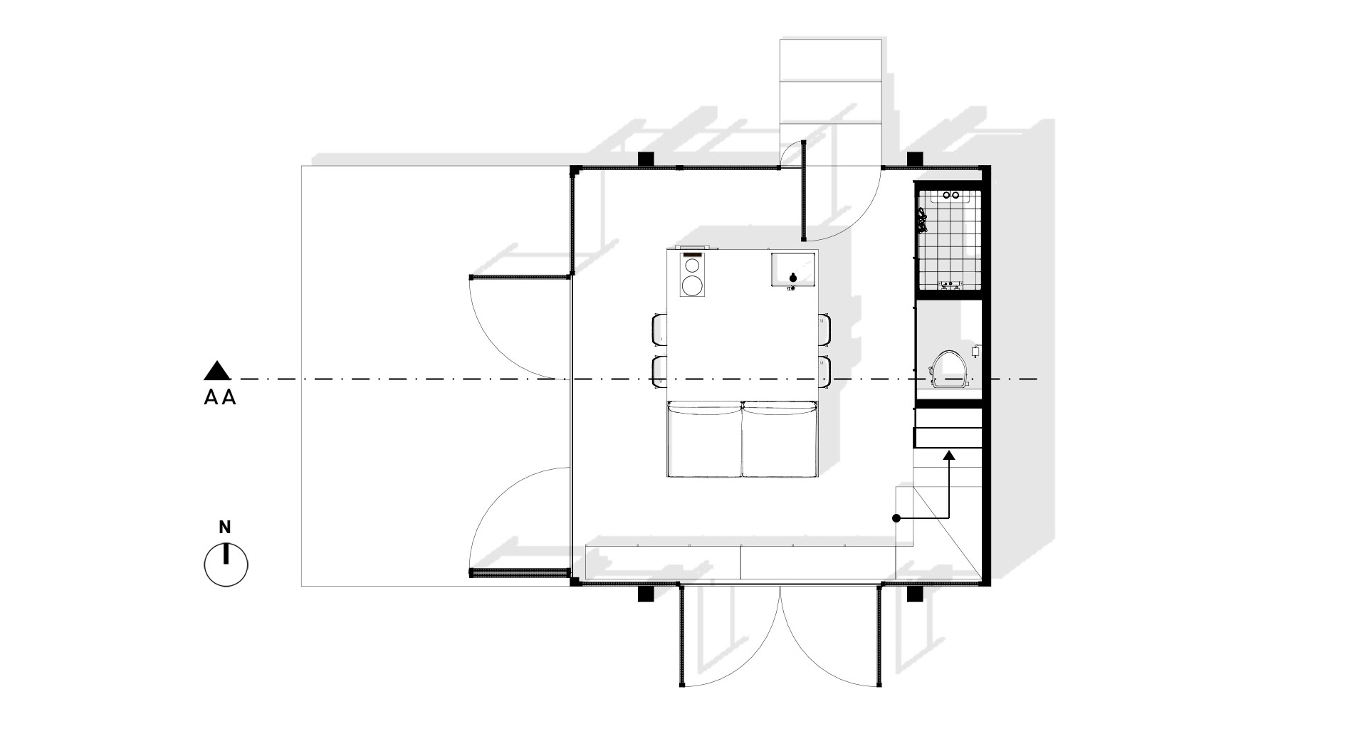
01 / Plan - Ground Floor
02 / Plan - First Floor
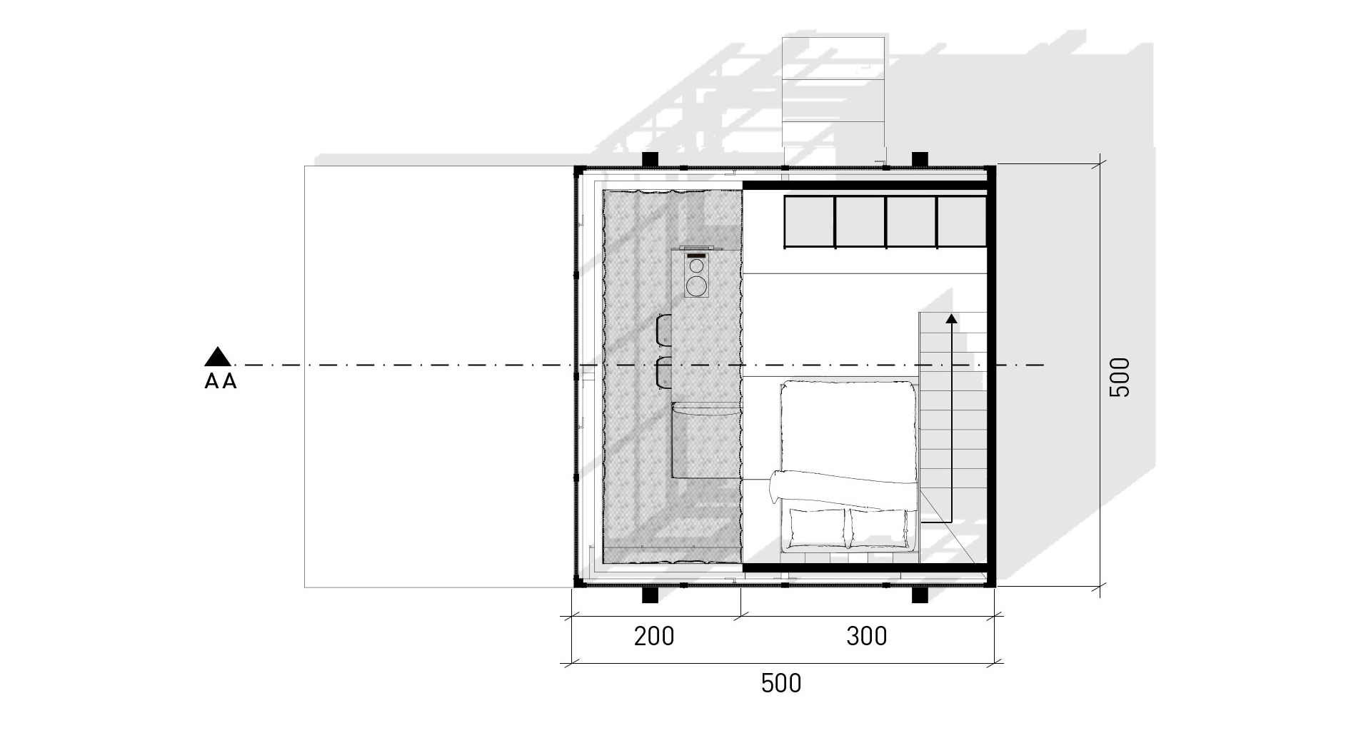
03 / Section Cut AA
04 / Elevation - West
keyboard_arrow_left
keyboard_arrow_right
